NATURLIVING®

Záhradný domček s prístreškom na auto

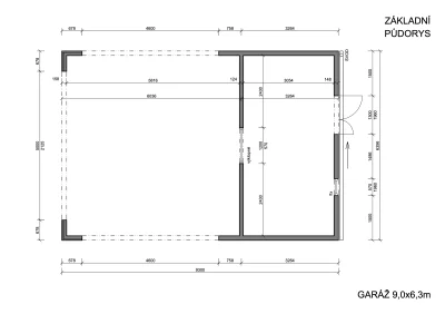
Záhradný domček s prístreškom pre auto (9,0 × 6,3 m)

Projekt tejto záhradnej búdky s prístreškom pre auto vznikol ako odpoveď na potrebu praktického a esteticky čistého riešenia parkovania, ktoré by zároveň ponúkalo dostatok úložného priestoru. Klient nechcel tradičnú garáž, ale konštrukciu, ktorá by pôsobila ľahko, zapadla do záhrady a stala sa prirodzenou súčasťou pozemku.

Výsledkom je kombinovaná stavba, ktorá spája uzavretú záhradnú búdu a otvorený prístrešok pre auto do jedného architektonicky jednotného celku.

Požiadavky klienta:

  • kryté parkovacie miesto pre auto bez potreby uzavretej garáže
  • samostatná záhradný domček na náradie, bicykle a sezónne vybavenie
  • úspora miesta na pozemku kombináciou funkcií do jednej konštrukcie
  • jednoduchý, moderný vzhľad bez zbytočných detailov
  • pohodlný prístup k záhradnému domčeku nezávisle od parkoviska

Klient tiež zdôraznil, že budova by mala vyzerať skôr ako záhradná stavba než ako úschovňa náradia.

Zvolené riešenie a materiály

Navrhli sme kombinovanú stavbu s celkovou pôdorysnou plochou 9,0 × 6,3 m, rozdelenú na dve funkčné časti:

  • uzavretú záhradnú chatku s šírkou približne 3,2 m
  • prístrešok pre auto – kryté parkovacie miesto pre auto, s dĺžkou približne 4,6 m

Obe časti sú konštrukčne prepojené a zakryté spoločnou strechou. Nosná stena medzi záhradným domčekom a prístreškom pre auto tiež zvyšuje konštrukčnú pevnosť a umožňuje flexibilné využitie priestoru.

Dizajn a dispozícia

Dispozícia je navrhnutá s dôrazom na logický tok a každodenný komfort. Záhradný domček má samostatný bočný vchod, vďaka čomu je prístupný kedykoľvek bez nutnosti presúvať auto.

Prístrešok pre auto zostáva otvorený, vzdušný a vizuálne ľahký – chráni auto pred dažďom, snehom a slnkom, ale nepôsobí uzavreto ani príliš dominantne. Celá konštrukcia je navrhnutá tak, aby:

  • nerušila záhradu
  • dobro zapadla do rodinného domu
  • vyzerala nadčasovo aj o roky neskôr

Výsledok

Vznikla záhradný domček s prístreškom pre auto, ktorá slúži hneď na viacero účelov:

  • kryté parkovisko pre auto
  • bezpečný úložný priestor
  • architektonický prvok, ktorý dopĺňa pozemok, namiesto toho, aby ho prevažoval

Konštrukcia ponúka flexibilitu do budúcnosti – prístrešok môže slúžiť aj ako kryté posedenie, pracovný priestor alebo miesto pre návštevníkov. Klient získal praktické riešenie bez kompromisov v oblasti estetiky alebo funkčnosti.

Základné informácie o projekte

Typ stavby: záhradný domček s prístreškom pre auto
Celková pôdorysná plocha: cca 9,0 × 6,3 m
Uzavretá časť: záhradný domček / sklad
Otvorený priestor: prístrešok – kryté parkovacie miesto
Konštrukcia: drevený rám NATURLIVING®
Využitie: parkovanie, skladovanie, záhradné zariadenia

 

 
Vlastnosti

Šírka 9 m
Hĺbka 6,3 m
Chcete iné rozmery? Radi vám pripravíme riešenie na mieru.
Pôdorys

Zaujali vás naše moderné drevené stavby?