NATURLIVING®

Záhradná kancelária s domácou posilňovňou a prístreškom pre auto

Záhradná kancelária, domáca posilňovňa a prístrešok pre auto v jednom funkčnom celku

Táto realizácia je ukážkou inteligentného prepojenia práce, pohybu a každodenného komfortu vo vlastnej záhrade. Klient hľadal riešenie, ktoré by mu umožnilo sústredenú prácu z domova, pravidelný pohyb bez zbytočného dochádzania a zároveň praktické kryté parkovanie. Výsledkom je premyslená kombinovaná stavba NATURLIVING®, ktorá spája jednotlivé funkcie do jedného architektonicky čistého a prevádzkovo logického celku.

Požiadavky klienta

Klient chcel vytvoriť prostredie, ktoré mu umožní efektívne pracovať z domu, ale zároveň zachovať jasnú hranicu medzi pracovným a súkromným životom. Záhradná kancelária mala ponúknuť pokoj, sústredenie a profesionálne zázemie bez rušivých vplyvov domácnosti. Veľkou výhodou bola možnosť „odísť do práce“ pár krokov od domu a po skončení pracovnej doby sa opäť vrátiť domov bez pocitu, že práca zostáva neustále prítomná.

Súčasťou zadania bola aj domáca posilňovňa v záhrade, ktorá klientovi umožňuje pravidelný pohyb bez nutnosti dochádzať do verejných posilovní. Cvičenie v súkromí kedykoľvek počas dňa výrazne šetrí čas a podporuje dlhodobo zdravý životný štýl. Posilňovňa mala byť dostatočne veľká na plnohodnotné vybavenie a zároveň oddelená tak, aby nerušila pracovnú časť.

Klient ďalej požadoval kryté parkovacie miesto priamo pri stavbe, ktoré zvyšuje každodenný komfort, chráni automobil pred nepriaznivým počasím a prirodzene dopĺňa celkovú funkčnosť objektu. Dôležitým aspektom bola aj prepojenosť jednotlivých častí, prehľadná dispozícia a maximálne využitie pozemku bez nutnosti stavať viac samostatných objektov.

Hlavné požiadavky klienta možno zhrnúť do niekoľkých bodov:

  • samostatná záhradná kancelária s pokojom a profesionálnym zázemím
  • jasné oddelenie pracovného a súkromného života
  • domáce fitness v záhrade bez nutnosti dochádzania
  • možnosť cvičenia kedykoľvek počas dňa v súkromí
  • kryté parkovacie miesto priamo pri budove
  • logické prepojenie jednotlivých častí objektu

Zvolené riešenie a materiál

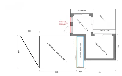
Navrhli sme kombinovanú stavbu pozostávajúcu z troch hlavných častí: záhradnej kancelárie, dvoch oddelených fitness miestností a zastrešeného parkovacieho miesta (carportu). Jednotlivé objekty sú prepojené tak, aby na seba funkčne nadväzovali, ale zároveň si zachovali potrebnú mieru oddelenia. Konštrukcia vychádza z osvedčeného systému NATURLIVING® s dôrazom na dlhú životnosť, stabilitu a minimálne nároky na údržbu.

Dizajn a prevedenie

Dispozícia je navrhnutá s ohľadom na každodennú prevádzku – z parkovacieho miesta je prirodzený prístup k budove, zatiaľ čo pracovná a športová časť zostáva orientovaná do pokojnejšej časti záhrady. Previsy striech chránia vchody aj zasklenie a zároveň podčiarkujú moderný architektonický výraz celého komplexu. Veľké okná vpúšťajú do interiéru dostatok svetla a vytvárajú príjemné prostredie ako na prácu, tak aj na cvičenie.

Výsledok realizácie

Vznikol kompaktný, ale veľmi funkčný celok, ktorý výrazne rozširuje možnosti využitia záhrady. Klient získal plnohodnotné zázemie pre prácu z domova, každodenný pohyb aj pohodlné parkovanie – všetko na jednom mieste a v jednotnom dizajne. Táto realizácia potvrdzuje, že kombinované stavby NATURLIVING® sú ideálnym riešením pre tých, ktorí chcú zo svojho pozemku vyťažiť maximum bez kompromisov.

Hlavné výhody riešenia:

  • jasné oddelenie práce, športu a súkromia
  • úspora času vďaka homeoffice a fitness v záhrade
  • cvičenie v súkromí bez dochádzania do posilňovne
  • kryté parkovisko priamo pri objekte
  • maximálne využitie pozemku jednou stavbou
  • jednotný dizajn a architektonická čistota

Základné informácie o realizácii

Typ stavby: kombinovaná stavba – záhradná kancelária, domáca posilňovňa, prístrešok pre auto
Funkcie: práca, šport, parkovanie
Dispozícia posilňovne: 3 × 3 m a 4 × 3,5 m
Súčasť riešenia: zastrešené parkovacie miesto, presahy striech, zasklenie
Realizácia: na mieru podľa požiadaviek klienta

 

Zaujali vás naše moderné drevené stavby?